erikjuul-architects
PROJECTS INTERVIEWS NEWS CONTACT
PROJECTSINTERVIEWSNEWSCONTACT
erikjuul-architects
erikjuul

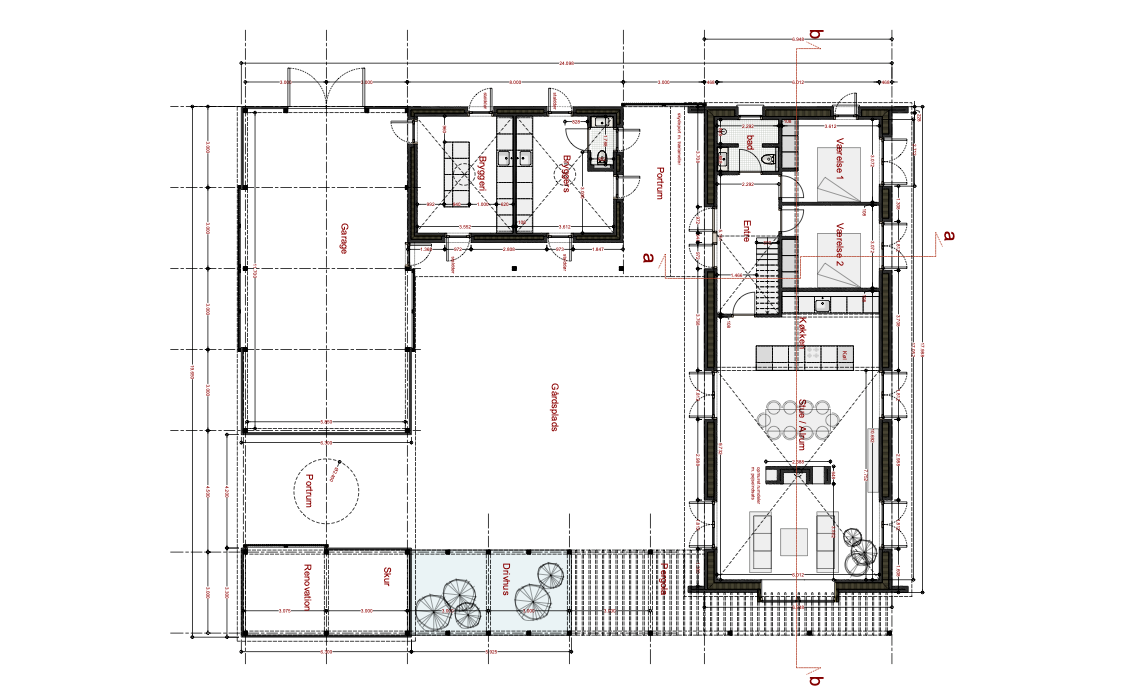
Villa Jylland

TASK A contemporary interpretation of the traditional four-winged farmhouse
CLIENT Jens Kildsgaard og Merete Grøfte
LOCATION Jylland, Denmark
SIZE 140 m2
TEAM Erik Juul, Viggo Grøfte Kildsgaard, Lars Myrhøj, Mads Buus
Jesper Bech LokzaNovember 30, 2025
Facebook0 Twitter Tumblr Pinterest0 0 Likes
Previous

Villa Raben

Jesper Bech LokzaNovember 30, 2025
Next

WoodLand - tinyhouse

erik juulOctober 15, 2025